19
36 500 000 р. 100 т.р./ м2
217 703 р.
в месяц по ипотеке
Нижний Новгород, Лысогорская ул, 89, к.3

Универсальные помещения
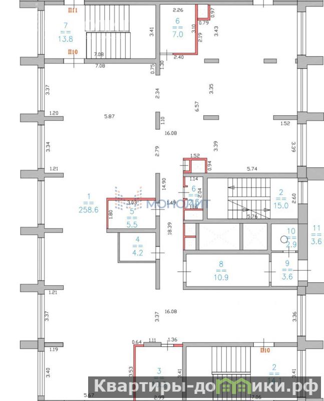
Встроенное помещение
365 м2

2 из 17
требует ремонта
Монолитный
2015

26.05.2025 (195 дней назад)
26.11.2025 (10 дней назад)
Нежилое помещение от Застройщика, 2й этаж, два отдельных входа: на Родионова и со двора! Жилой комплекс Монолит представляет собой монолитное здание состоящее из 3 корпусов от 17 до 25 этажей. ( 900 квартир) На первых этажах размещены торговые и офисные помещения. Территория и подъезды оборудованы системой видеонаблюдения! Предусмотрены открытые автостоянки более 600 машиномест. Для ЖК Построена своя отдельно стоящая котельная! В шаговой доступности расположены: Гипермаркет Лента, ТРЦ Фантастика, детские сады, школы, магазины, остановки общественного транспорта. Нижегородский район, микрорайон Верхние Печеры, рядом гипермаркет Лента, ТРЦ Фантастика, улицы: Родионова , Деловая, Казанское шоссе, Бринского, Максима Горького, Белинского, Минина, Ванеева, Гагарина ! Официальный Представитель застройщика! Для Вас действуют выгодные предложения, индивидуальные скидки и акции! Запись на просмотр по телефону. Реализуем Вашу недвижимость!Номер объекта: #51/8642778/11523
Показать телефон
Загрузка карты