171
20 500 000 р. 2 050 т.р./ сот.
122 271 р.
в месяц по ипотеке
История изменения цены
Казань, ул. Мухамедьяра

10 сот.
ИЖС
Косметический

28.12.2023 (710 дней назад)
24.07.2025 (135 дней назад)

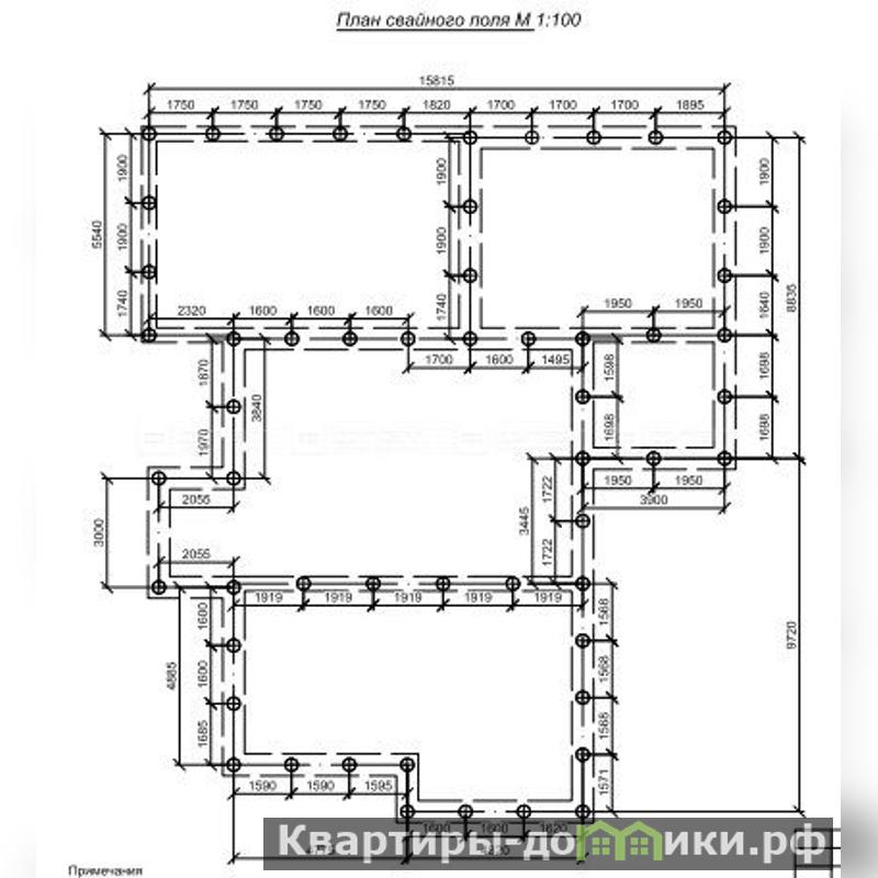
Объект №57816 РОВНЫЙ УЧАСТОК! ДИЗАЙН-ПРОЕКТ В ПОДАРОК!Продаем участок ИЖС 10 соток, в начале поселка Весенний, за ЖК Весна по улице Мухамедьяра! Участок с свайно-ленточным фундаментом под дом 10х12 и простроем 6х16 (гараж, сауна, комната отдыха) см. фотографии. Также имеется эскизный проект с визуализацией дома. Получены документы на строительство это (ГПЗУ, Уведомление о начале строительства). Оплачен вступительный взнос для подключения к газовой магистрали и получены технические условия на подключения к газовой линии, также на участке имеется оплаченная точка подключения для электроснабжения. Хорошая инфраструктура, 5 минут до Мамадышского тракта. Недалеко парк ЖК Весны. Имеются все необходимые магазины и один крупный гипермаркет Зельгрос, 2 детских сада, школа. Альтернатива: Царицыно, Константиновка, Клыки. Улицы:Проспект Победы, Мамадышский тракт.
Показать телефон
Загрузка карты