49
Мещанский р-н., г, Мира пр-кт
Проспект Мира

Универсальные помещения
Бизнес-центр
А
27 м2

1 из -
евро

Пропускная система
Круглосуточный доступ
Лифт
Тип входа: common

03.10.2024 (430 дней назад)
05.12.2025 (1 день назад)

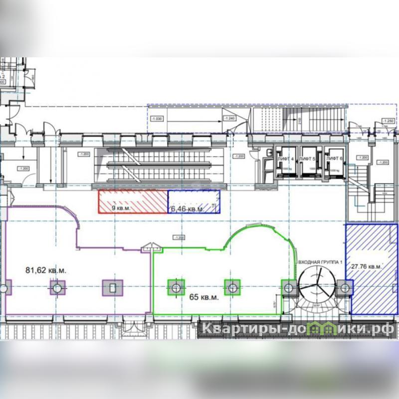
Лот №637617 Предлагается в аренду помещение свободного назначения площадью 27 м2 на 1 этаже с качественной отделкой. Возможные назначения: кофейня, салон связи, кондитерская, ритейл зона. Бизнес-центр, расположенный в Мещанском районе Центрального административного округа (ЦАО) города Москвы, имеет удобную транспортную доступность: вход на кольцевую станцию Московского метрополитена Проспект Мира находится в двух минутах пешей ходьбы. Также вблизи здания находится проспект Мира и Садовое кольцо. Стоимость аренды: 350000 руб/м2/год (787500 руб в месяц) включая НДС 20%. В цену включено: эксплуатационные расходы. В цену не включено: затраты на электричество, коммунальные расходы, уборка. Чтобы получить ПОДРОБНУЮ ПРЕЗЕНТАЦИЮ С ПЛАНИРОВКОЙ И ФОТОГРАФИЯМИ, звоните или отправьте свой email в сообщении на портале. Высылаем в течение 15 минут по запросу! ? Конт. лицо: Эльдар Гатуфович, доб. 219, ЛОТ №637617
Показать телефон
Загрузка карты