Продажа коттеджа в Рамонском районе.  Ищете уютное и комфортное семейное гнёздышко для жизни за городом? Тогда предлагаем вашему вниманию роскошный газосиликатный коттедж, расположенный в живописном уголке Рамонского района, в коттеджном посёлке Лазурный. Основные характеристики: Этажность: 2 этажа. - Количество спален: 4. - Коммуникации: газ, электричество 380 В, интернет. - Инфраструктура: гараж, баня, бассейн. Описание дома: Дом построен в 2024 году из качественных газосиликатных блоков, что обеспечивает отличную теплоизоляцию и долговечность. Общая площадь дома составляет 330 кв. м., жилая площадь 144 кв. м., площадь кухни 16,4 кв.м. Теплая терасса с мангальной зоной 70 кв. м. Дизайнерский ремонт создаёт атмосферу уюта и комфорта. - Крыша: гибкая черепица, которая обеспечивает надёжную защиту от непогоды. - Облицовка: керамический кирпич, придающий зданию эстетичный вид. - Водоснабжение: центральное водоснабжение. - Отопление: автономное (котельная). - Канализация: центральная канализация. На участке площадью 10 соток есть возможность создать красивый ландшафтный дизайн, обустроить зону отдыха или посадить огород. Категория земель населённые пункты, что гарантирует развитую инфраструктуру района. Этот коттедж станет идеальным местом для тех, кто ценит тишину и спокойствие загородной жизни, но при этом не хочет отказываться от комфорта и удобств. Рядом с домом расположен лес, где можно совершать прогулки на свежем воздухе или устраивать пикники. Не упустите шанс приобрести этот прекрасный дом по выгодной цене! Звоните и приходите на просмотр!
1 этаж:
Холл 44,5 м.
Гардероб 3,85 м.
Гостевая комната 15,93 м.
Прачечная-с/у-котельная 10,35 м.
Гостинная 44,18 м.
Кухня 16,4 м.
Крытая терасса 60 м (с зоной барбекю).
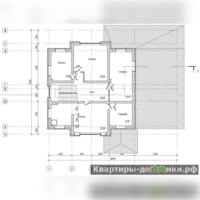
2 этаж:
Холл 26,08 м.
Ванная 13,21 м.
Спальня 1 25,46 м.
Спальня 2 24,65 м.
Мастер-спльня 44,75 м.
Площадь дома:
Площадь первого этажа 135,2 м.
Площадь второго этажа 134,15 м.
Площадь террасы 60 м.
Площадь гаража на две машины 36,42 м.
РАССМОТРИМ ВАРИАНТ ОБМЕНА НА КВАРТИРУ.
Показать телефон
Загрузка карты
Поделиться объявлением
Отправить жалобу
Поднять объявление
Итого: 210 р.
Вы будете перенаправлены на страницу оплаты (Robokassa).
Загрузка
Получить контактные данные
Внимание! Это платная услуга. Стоимость 100 рублей.
Укажите почтовый адрес (туда будет отправлена копия контактов из объявления)
Письмо отправлено!
На указанный при регистрации Email отправлены контактные данные для данного объекта.
Мы вышлем контакты на указанную почту как только оплата будет проведена.
Отправить сообщение продавцу
Сообщение отправлено!
Владелец объявления свяжется с Вами в ближайшее время.
Отправить объявление по почте
Письмо отправлено!
На указанный Email отправлена информация о текущем объекте.