63

Данное объявление было снято с публикации собственником. Если несмотря на это Вы хотите увидеть контактные данные, то можете сделать это посредством платной услуги "Хочу все знать".


42 604 р.
Восточное Дегунино р-н., Дубнинская улица, 30А
Алтуфьево, Бибирево

Офисные помещения
Отдельно стоящее здание
41 м2

2 из 4
4.1 м
хороший
1994

Коммунальные услуги включены в стоимость
Пропускная система
Электроэнергия включена в стоимость
Отопление
Интернет
Лифт

11.12.2024 (374 дня назад)
28.05.2025 (205 дней назад)

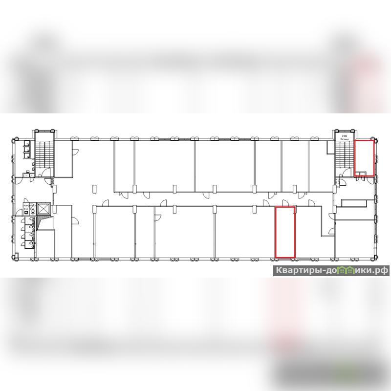
Офис с ремонтом в административном здании. Прямая аренда от МГТС. Ближaйшие станции метpо Яхромская, Бескудниково (МЦД 1) В 1 минуте от ТЦ Петровский. Площадь офиса 36,6 м2 по БТИ. Расчетная площадь 40,9 м2 (12% коридорный коэффициент). Кабинетная планировка. 2 кабинета на этаже (21,7 м2 и 14,9 м2). Высота потoлкoв 4,09 м. Этаж 2. Лифт пассажирский 400 кг. Цифровая телефония и интернет от МГТС. Огороженная территория. Видеонаблюдение и круглосуточная охрана. Возможно размещение вывески на фасаде здания. Юридический адрес - бесплатно. Объект относится к территориальной ИФНС 13. Возможно предоставление арендных каникул. Обеспечительный платеж 1 месяц. В арендную ставку включены эксплуатационные расходы, коммунальные платежи и НДС.

Если Вы хотите чтобы объявление было полностью удалено с нашего сайта, ознакомьтесь с информацией про удаление арихивных объектов (платная услуга).

Загрузка карты