34
7 990 000 р.
Индустриальный, Восточный обход Краснодара, 239

Складские помещения
8,200 м2

- из -

21.01.2025 (319 дней назад)
21.01.2025 (318 дней назад)

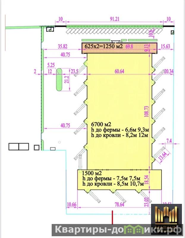
В аренду предлагается склад класса А, площадью 7000 м2 плюс офис 1200 м2. Объект расположен: г.Краснодар , пос. Индустриальный.Технические характеристики: - Склад: h до фермы 9,3м h до кровли 12 м - Офис: h до фермы 7,5м h до кровли 10,7 м. Полы: Антипыль, нагрузка 6т/кВ м. Разгрузочно-погрузочные ворота: 10 шт докового типа, h 1,2 м. Погрузочные мосты "HORMANN" Германия, с датчиками парковки. Каждый док оборудован светофором и парктрониками. Система пожаротушения : сплинкерная , собственные пожарные резервуары, насосная станция. Электричество: 850 КВт собственная ТП. Дизель генератор 550 Квт. Закрытая охраняемая территория. Место для маневрирования и стоянки большегрузных авто. Цена склада:уб за 1 кВ м + коммунальные. Цена офиса:уб за 1 кВ м + коммунальные. Итого:=ежемесячно. AFY-901094706
Показать телефон
Загрузка карты