50
Беговой р-н., г, Бумажный проезд
Менделеевская

Офисные помещения
Бизнес-центр
А
892 м2

3 из -

Пропускная система
Круглосуточный доступ
Лифт
Общепит
Тип входа: common

26.01.2025 (313 дней назад)
04.12.2025 (сегодня)

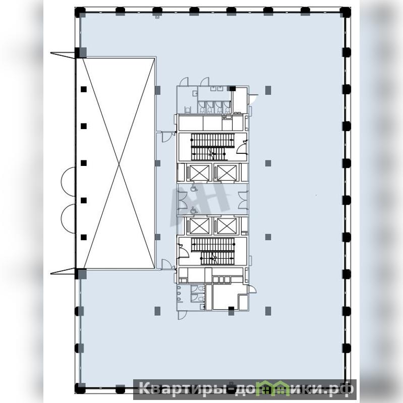
Лот №780665 Аренда готовых офисных пространств в бизнес-центре Tower C, в составе премиального офисного квартала STONE TOWERS в Белорусском деловом районе. Характеристики предлагаемого лота: -Класс БЦ: А -Этаж: 3/10 (Башня С) -Площадь: 891.6 м2 -Планировка: Open space -Отделка: Shell&Core -Высота потолков: 3,65 м -Мокрая точка: да -Шаг колонн: 8,4х 8,4 -Глубина помещения: до 10 м -Окна в пол с естественным проветриванием Эксплуатация и коммунальные платежки оплачиваются отдельно Расположение: Офисный квартал отличают престижное расположение в Белорусском деловом районе и высокая транспортная доступность: -пешая доступность (4 мин) до ТПУ Савеловская; -пешая доступность (12 мин) до ТПУ Белорусская; -удобный доступ до Москва-Сити (15 мин); -удобный выезд на ТТК и Ленинградский проспект; -близость аэропорта Шереметьево (45 мин) Преимущества офисного квартала: - Парк 5000 кв.м в составе офисного квартала - Современные инженерные системы - Двухуровневый подземный паркинг - Наземный гостевой паркинг - Столовая для резидентов - Коворкинг - Торговая и офисная инфраструктура в режиме сухие ноги Девелопер проекта компания STONE. Девелопер коммерческой и жилой недвижимости классов бизнес и премиум в Москве. С 2022 года занимает лидирующую позицию на офисном рынке (рейтинг РБК). За 18 лет компания вывела на рынок 28 проектов. Компания имеет самый масштабный проектный портфель офисной недвижимости класса А на московском рынке (данные NF Group) и возглавляет топ-6 устойчивых девелоперов, согласно исследованию FResearch (Forbes). Стоимость аренды: 49800 руб/м2/год (3700140 руб в месяц) включая НДС 20%. В цену включено: эксплуатационные расходы. Чтобы получить ПОДРОБНУЮ ПРЕЗЕНТАЦИЮ С ПЛАНИРОВКОЙ И ФОТОГРАФИЯМИ, звоните или отправьте свой email в сообщении на портале. Высылаем в течение 15 минут по запросу! ? Конт. лицо: Валерия Павловна, доб. 213, ЛОТ №780665
Показать телефон
Загрузка карты