46
39 247 241 р. 202 т.р./ м2
234 089 р.
в месяц по ипотеке
Мурино, Лесная улица, 1
Девяткино

Универсальные помещения
Отдельно стоящее здание
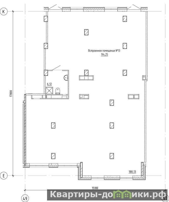
194 м2

1 из 12
2026
От собственника

От владельца
Пожарная сигнализация
Тип входа: separate

06.03.2025 (276 дней назад)
05.12.2025 (1 день назад)

Прямая продажа
Продается помещение свободного назначения в UP-квартале Воронцовский. Прямая продажа от застройщика. UP-квартал Воронцовский - жилой комплекс класса комфорт+ в Новом Девяткино. В составе комплекса: 3 корпуса по 12 этажей - на 1 900 квартир. Комплекс расположен в обжитом районе по соседству с уже заселенными многоквартирными домами, что дополнительно увеличивает потенциальный пешеходный трафик. Единый текст для всех проектов Преимущества помещения: - Безбарьерный вход на уровне земли - Большие витринные окна - Открытая планировка. Гибкие возможности кастомизации помещения под ваши задачи. - Возможность объединения с соседними помещениями - Высота потолков до 3,7 - Подведены все инженерные коммуникации - Оптимальная мощность электроснабжения - Возможность размещения рекламной вывески - Место для установки кондиционеров
Показать телефон
Загрузка карты