3

Данное объявление было снято с публикации собственником. Если несмотря на это Вы хотите увидеть контактные данные, то можете сделать это посредством платной услуги "Хочу все знать".


75 400 р.
Водников ул., 2с2

Офисные помещения
C
60 м2

4 из 4

Мебель
Количество телефонных линий: 0

09.04.2025 (261 день назад)
09.04.2025 (260 дней назад)

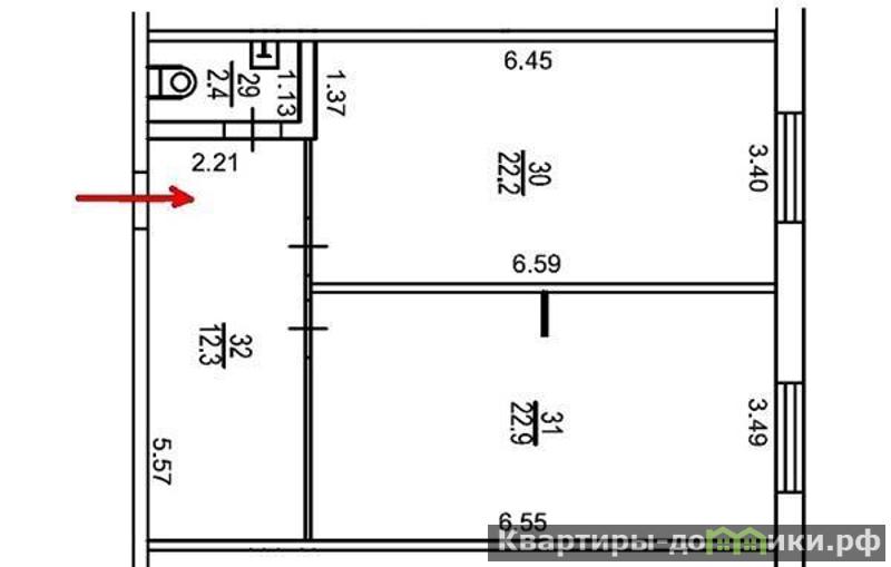
Александр. Сдается офис 59,8 кв.м. на территории БП Водники. Офис на 4-ом этаже. Свой С/У. Обратите внимание, что в здании нет лифта. Доступ: С 7:00 до 23:00 пеший вход свободный. Въезд на территорию про пропускам или заявкам. На территории: кафе, магазин, кафетерий, фитнес-клуб с бассейном. Электроснабжение: 10 кВт. Дополнительно оплачивается электроэнергия (пропорционально занимаемой площади на этаже по общему счетчику на этаже) Перепланировка возможна по предварительному согласованию. Стоимость: 75 400 рублей в месяц за все помещение.

Если Вы хотите чтобы объявление было полностью удалено с нашего сайта, ознакомьтесь с информацией про удаление арихивных объектов (платная услуга).

Загрузка карты