226
9 750 000 р. 81 т.р./ м2 696 т.р./сот.
58 153 р.
в месяц по ипотеке
История изменения цены
Некрасовский р-н., село Малые Соли, Новая улица, 14а

121 м2
14 сот.
ИЖС

1
без ремонта
Блочный

Электричество

16.04.2025 (234 дня назад)
03.07.2025 (156 дней назад)

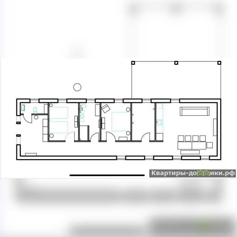
Арт. 81124073. Объявление о продаже жилого дома на берегу реки Солоница в Малых Солях. Общая информация: Тип дома: барнхаус, жилой дом в предчистовой отделке Местоположение: берег реки Солоница, территория ИЖС (кадастровый номер 76: 09: 092001: 985) Площадь участка: 14 соток, сухой, с удобным подъездом, расположенный недалеко от трассы, в тихом месте Оформление: собственность оформлена на физическое лицо, возможна ипотека, рассрочка не предоставляется Строительные характеристики: Фундамент: блоки ФБС с дренажами, отсыпкой и укреплением; дополнительно утепленный Стены: кирпич с утеплителем, декоративная отделка профнастилом Крыша: двускатная, утепление минеральной ватой (URSA 200 мм) Высота потолков: 3,2 м Окна: пятикамерный профиль, 70 мм, наружная ламинация Планировка: 2 отдельные спальни Прихожая и коридор Большая кухня-гостиная 2 санузла Котельная/гардеробная Встроена открытая терраса с видом на реку и выходом к воде Коммуникации: Газ: подключен, установлен котёл, отопление и водонагрев Вода: скважина Канализация: септик Электричество: 15 кВт, заведено в дом Особенности: Дом готов к отделке, что позволяет завершить его под индивидуальный дизайн. Рядом с трассой, но в тихом месте - идеально для отдыха и проживания. Если требуется более подробная информация или организация просмотра, пожалуйста, обращайтесь! -------------------------------------------------------------- Без комиссии для покупателя! -------------------------------------------------------------- 1. Больше информации по телефону и в форме чата. 2. Для иногородних клиентов оперативно покажем объект по видеосвязи. 3. Приглашаем посредников к сотрудничеству на выгодных условиях. 4. Если этот объект не понравился по фотографиям и описанию - обращайтесь, предложим альтернативу. 5. Фиксируем звонки в режиме 24/7, для Вашего удобства работает контакт-центр.
Показать телефон
Загрузка карты