23
54 317 435 р. 300 т.р./ м2
323 974 р.
в месяц по ипотеке
История изменения цены
Строгино р-н., МКАД 64-й километр, 1
Строгино

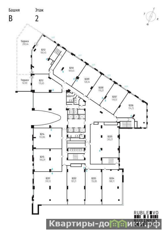
Офисные помещения
181 м2

2 из 13

02.06.2025 (187 дней назад)
04.12.2025 (1 день назад)

ОФИС В БАШНЕ B | RUBLEVO BUSINESS PARK Класс А | Победитель премии Move Realty Awards в номинации Лучший проект для инвестиций Инвестируйте в офис с максимальным потенциалом роста - в новом бизнес-центре Rublevo Business Park. Современный проект А-класса на Новорижском направлении: высокий спрос, редкие форматы, идеальная транспортная доступность. Преимущества объекта Свободная планировка от 50 до 4000 м - возможность адаптации под любые задачи бизнеса. Высота потолков от 4,05 до 6,03 м - создаёт ощущение простора, идеально для открытых пространств, шоурумов и двухуровневых решений. Частные террасы - уникальный формат на офисном рынке Москвы. Панорамное угловое остекление - естественный свет в течение всего дня и впечатляющие виды. Shell & Core - гибкость в проектировании интерьера под себя. Архитектура и инженерия Класс А - соответствие высоким стандартам по инфраструктуре, инженерным системам и управлению зданием. Гранд-лобби 1500 м, высота 9 м - знаковое пространство с интерьерами от бюро UNK corporate interiors. 22 скоростных лифта - бесшумные и быстрые, рассчитаны на интенсивный трафик. Современные инженерные системы - высокий уровень комфорта и энергоэффективности. Локация и транспорт 2 минуты до Новорижского шоссе и проспекта Маршала Жукова - быстрый выезд на ключевые магистрали. 8 минут до м. Строгино, 500 м до будущей м. Липовая роща (открытие до 2027 года) - отличная доступность как на авто, так и на общественном транспорте. Условия покупки Продажа по ДДУ (214-ФЗ) через эскроу-счета Проектное финансирование от Сбербанка Возможна рассрочка Возврат НДС 20% Инвестиционная привлекательность Ожидаемый рост капитализации с открытием метро Возможность сдачи по блокам или этажом целиком ROI: 9-12% ________________________________________ Адрес объекта: МКАД, 64 км
Показать телефон
Загрузка карты