77
16 990 000 р. 113 т.р./ м2 5 663 т.р./сот.
101 336 р.
в месяц по ипотеке
История изменения цены
муниципальный округ Анапа, село Супсех, улица Терешковой, 20А
23:37:1001001:

5
151 м2
56 м2
33 м2
3 сот.

2
Блочный

Возможность приобретения в ипотеку
Водопровод
Газ
Отопление
Канализация

26.06.2025 (200 дней назад)
10.01.2026 (1 день назад)

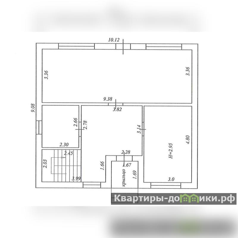
Объект №48032 В продаже НОВЫЙ ЖИЛОЙ ДОМ в поселке Супсех. О ДОМЕ: - Общая площадь дома 151 кв.м. - Дом 2-этажный. В предчистовой отделке. - Дом выполнен из качественных строительных материалов, снаружи облицован кирпичом. - Расположен в районе с развитой инфраструктурой, рядом продуктовые магазины, аптеки, остановка общественного транспорта. ЗВОНИТЕ/ПИШИТЕ, отвечу на все интересующие вопросы и организую показ.
Показать телефон
Загрузка карты