123
21 200 000 р. 286 т.р./ м2
126 447 р.
в месяц по ипотеке
Калининский р-н., Кушелевка, Академика Константинова ул, 1, к.1
Политехническая

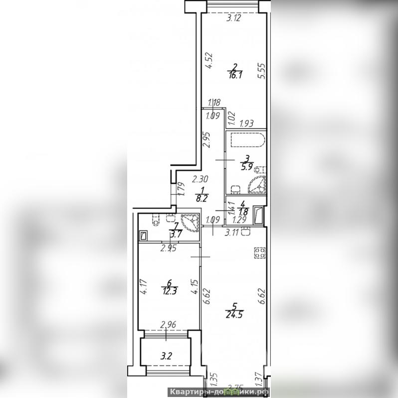
2
74 м2
28.4 м2
12.3 + 16.1 м2
24.5 м2

11 из 11
2.7 м
Раздельный
черновая отделка
Лоджия
Кирпично-монолитный
2025

Лифт

10.09.2025 (108 дней назад)
10.09.2025 (107 дней назад)

С паркингом
С балконом
ЖК Вашей мечты по адресу: Санкт-Петербург, улица Академика Константинова, 1к1 Комплекс представляет собой дома, построенные по долговечной кирпичной технологии переменой этажности: от 11 до 13 этажей. В облицовке стен используется керамогранит и штукатурка. Во всех корпусах выполнена дизайнерская отделка входных групп, установлены современные лифты и обустроены колясочные. Территория проекта выполнена по концепции двор без машин. На первых этажах расположены коммерческие помещения. Во дворах жилого комплекса реализовано единое благоустройство игровыми зонами и спортивной площадкой. В составе жилого комплекса построен подземный паркинг, детский сад и общеобразовательная школа. ЖК расположен в Калининском районе. В пешей доступности находятся магазины, школы, детские сады, медицинские учреждения, Вавиловский сквер, сад Бенуа и парк сосновка. До метро Академическая и Политехническая — 10 минут пешком. Я Вам предлагаю лучший вариант, помогу оформить сделку, безопасно и комфортно для Вас проведу сделку, окажу помощь на любом этапе, звоните.
Показать телефон
Загрузка карты