В связи с временными техническими проблемами, мобильной связи и нестабильной работой мобильного интернета возможны трудности с принятием звонков по данному объявлению. Ваш интерес и желание приобрести недвижимость очень важны для нас. Пожалуйста, свяжитесь с нами любым удобным способом: --- Напишите сообщение в чат --- Попробуйте повторно набрать номер позднее Объект действительно продаётся, и мы оперативно обработаем Ваш запрос любым удобным способом.
Продается таунхаус в коттеджном поселке "Северная Гардарика".
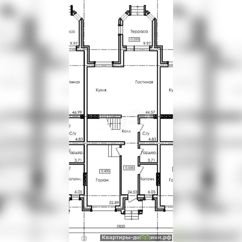
Общая площадь всех жилых и вспомогательных помещений превышает 350 кв.м, по документам 310 кв.м. Таунхаус имеет фактически 4 этажа: подвал с 3 помещениями, высота потолков полноценная, на первом этаже: большая кухня-гостиная с выходом на террасу, санузел, холл, гардеробная и гараж; второй этаж - 4 просторные комнаты, полноценный санузел, гардеробная, холл; чердачное помещение фактически является полноценным этажом, где возможно оборудовать 3 дополнительные комнаты.
Поселок спроектирован в европейском стиле с закрытой территорией и круглосуточной охраной. Непосредственная близость к Воронежу гармонично соседствует с экологичностью и красотой природы. На территории установлена детская площадка, в проекте спортивная площадка, минимаркет, салон красоты и другая инфраструктура. Остановка общественного транспорта фактически у ворот поселка.
При строительстве использованы современные технологии и качественные материалы: облицовочный керамический кирпич, 2 ряда газосиликатного блока. Суммарная толщина стен более 50 см. Перекрытия железобетонные. Кровля - металлочерепица. Пластиковые окна Rehau с двухкамерным стеклопакетом. Отдельные вентиляционные шахты. Металлические каркасы лестниц. Все коммуникации разведены: электропроводка, газовое отопление с двухконтурным котлом Protherm, центральное водоснабжение и водоотведение.
Ограничений и обременений нет, документы полностью готовы к сделке. Возможна ипотека. При необходимости есть возможность увеличить степень отделки до интересующей Вас. Оформляем ипотеку на выгодных условиях. Работаем с ЛЮБЫМИ жилищными сертификатами. Помогаем реализовать не проданное жилье покупателя.
По техническим причинам Вы можете не дозвониться с первого раза. Перезвоните, пожалуйста, или напишите в чат. Мы на связи 24/7 и ждем Вашего звонка.
Показать телефон
Загрузка карты
Поделиться объявлением
Отправить жалобу
Поднять объявление
Итого: 210 р.
Вы будете перенаправлены на страницу оплаты (Robokassa).
Загрузка
Получить контактные данные
Внимание! Это платная услуга. Стоимость 100 рублей.
Укажите почтовый адрес (туда будет отправлена копия контактов из объявления)
Письмо отправлено!
На указанный при регистрации Email отправлены контактные данные для данного объекта.
Мы вышлем контакты на указанную почту как только оплата будет проведена.
Отправить сообщение продавцу
Сообщение отправлено!
Владелец объявления свяжется с Вами в ближайшее время.
Отправить объявление по почте
Письмо отправлено!
На указанный Email отправлена информация о текущем объекте.