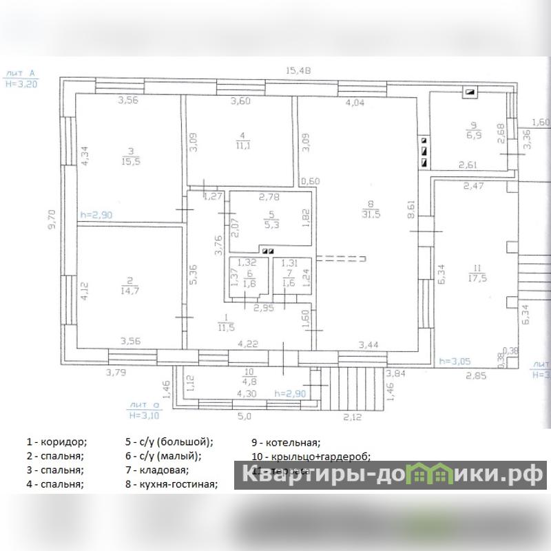
Предлагается к продаже одноэтажный жилой дом площадью 132,0 м2 на участке 5,4 сотки.
Три спальни, просторная кухня-гостиная, два санузла, вспомогательные помещения (гардеробная, кладовая), чердак, котельная, терраса.
Двор в бетоне, откатные ворота с электроприводом, навес на 2 автомобиля высотой 3,5 м (фургоны и грузовые а/м паркуются без проблем), освещение двора и пространства под навесом.
Дом выполнялся из качественных материалов, чердачное и подвальное перекрытия – ж.б., выполнены антисейсмические вертикальные ж.б. сердечники и сплошной антисейсмический пояс в уровне перемычек.
Центральный газ, электроэнергия 15 кВт, центральное водоснабжение, энергонезависимый септик 11 м3.
Дом выполнен по концепции Квартира на земле, где для максимального комфорта предусмотрены:
• Итальянский одноконтурный котёл 24 кВт с бойлером косвенного нагрева, подключенный через собственный стабилизатор-бесперебойник, обеспечивающий работу котла даже при среднесрочных (до 6 часов) отключениях электричества;
• Управление отоплением и горячим водоснабжением вынесено на отдельную панель управления на кухне, шумное оборудование (котёл, насосы, стабилизатор) вынесены в отдельное помещение котельной;
• ГВС организовано посредством бойлера косвенного нагрева 200 л из нержавеющей стали, с циркуляционным насосом на обратке – благодаря этому горячей воды много и она всегда постоянной температуры, водяной полотенцесушитель всегда горячий, а горячая вода идёт из кранов сразу;
• Теплые водяные полы во всех помещениях, кроме спален;
• Электромеханический трехфазный стабилизатор 20 кВА;
• Функциональная просторная кухня со встроенной техникой (индукционная варочная панель Electrolux, духовой шкаф Electrolux, микроволновка Electrolux, полноразмерная посудомоечная машина Bosch), объединенная в общее пространство со столовой и гостиной;
• Отдельный выход с кухни на террасу и во двор;
• Просторная душевая кабина 80х120 см, оборудованная смесителем с термостатом, что вкупе с бойлером на 200 л и правильно подобранными сечениями магистралей обеспечивает постоянную температуру воды в душе, даже при одновременном мытье посуды на кухне и работе стиральной машины;
• Видеонаблюдение 8 камер по 5 Мп;
• Окна Rehau с фурнитурой Roto и стеклопакетами с мультифункциональным покрытием;
• Кондиционеры;
Дополнительные бонусы:
• Сверх 132,0 м2 на 1 этаже, имеется чердак 60 м2 (5,0х12,0х2,8(h));
• Остаётся вся представленная на фото мебель и техника. Дополнительно остаются автомойка Karcher и пылесос с водяным фильтром Karcher;
• За дополнительную плату, после продажи дома, возможна продажа соседнего незастроенного земельного участка 5,4 сотки, где имеется контейнер для хранения инструмента, высокие грядки по Митлайдеру заполненные динским чернозёмом, плодовые деревья , кустарники и ягоды. На незастроенный участок подготовлена исходно-разрешительная документация на строительство, имеются ТУ на подключение к газу.
Один взрослый собственник. Без залогов и обременений.
Рассмотрю возможность обмена на квартиру в г. Москва (предпочтительно, в районе станций метро Шипиловская, Красногвардейская, Зябликово).Номер объекта: #51/538658/21801
Показать телефон
Загрузка карты
Поделиться объявлением
Отправить жалобу
Поднять объявление
Итого: 210 р.
Вы будете перенаправлены на страницу оплаты (Robokassa).
Загрузка
Получить контактные данные
Внимание! Это платная услуга. Стоимость 100 рублей.
Укажите почтовый адрес (туда будет отправлена копия контактов из объявления)
Письмо отправлено!
На указанный при регистрации Email отправлены контактные данные для данного объекта.
Мы вышлем контакты на указанную почту как только оплата будет проведена.
Отправить сообщение продавцу
Сообщение отправлено!
Владелец объявления свяжется с Вами в ближайшее время.
Отправить объявление по почте
Письмо отправлено!
На указанный Email отправлена информация о текущем объекте.