14
10 500 000 р. 239 т.р./ м2
62 627 р.
в месяц по ипотеке
История изменения цены
Краснодар, Очаковская улица, 24

Универсальные помещения
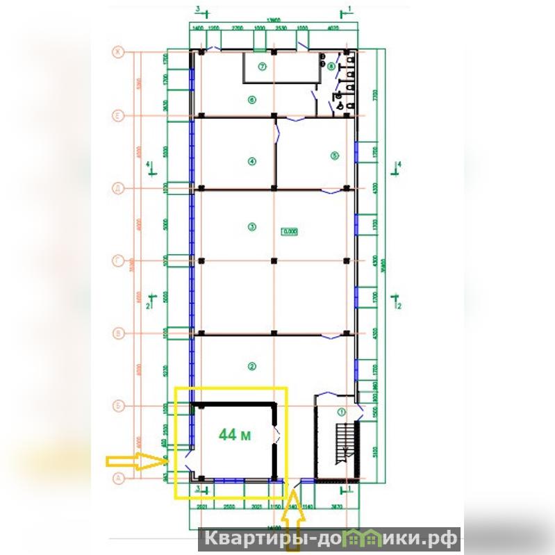
44 м2

1 из 2

24.09.2025 (72 дня назад)
15.11.2025 (19 дней назад)

Фасадное коммерческое помещение свободного назначения с долгосрочным арендатором - морепродукты. Окупаемость 11,5 лет Преимущества: Первая линия Угловое помещение Два отдельных входа Своя мокрая точка Витражные остекление Асфальтированные подъездные пути Предусмотрены парковочные места Характеристики: Общая площадь - 44 кв.м. Мощность - 15 кВт Помещение с отделкой: стены окрашены, на полу керамогранит. Коммуникации центральные Отопление - газовый котел Строилось по разрешению на строительство, вводилось по акту ввода в эксплуатацию В здании также находится якорный арендатор - сетевой магазин Чижик, второй этаж занимает детский игровой центр Активно развивающийся район с малоэтажной застройкой от 3 до 9 этажей и частными домами. В посёлке фиксируется нехватка социальной инфраструктуры, поэтому будут актуальны многие виды деятельности, если вы ищите помещение под свой бизнес. Здание расположено рядом с первой линией ул. Комарова - главной артерией поселка. Соседство: ТК Планета одежда, обувь, Пятерочка, DNS, мясной магазин. ДЛЯ ВАС: Подбор помещения по вашим параметрам Полное юридическое сопровождение сделки Звоните, расскажу подробнее, договоримся о встрече!
Показать телефон
Загрузка карты