Описание проекта:
Проект СМАРТ представляет собой ультракомпактный, эргономичный и экономичный дом, разработанный для максимальной энергоэффективности, лаконичного дизайна и универсальности. Перечислим его основные характеристики:
### Ключевые особенности:
- Технология: Каркасная.
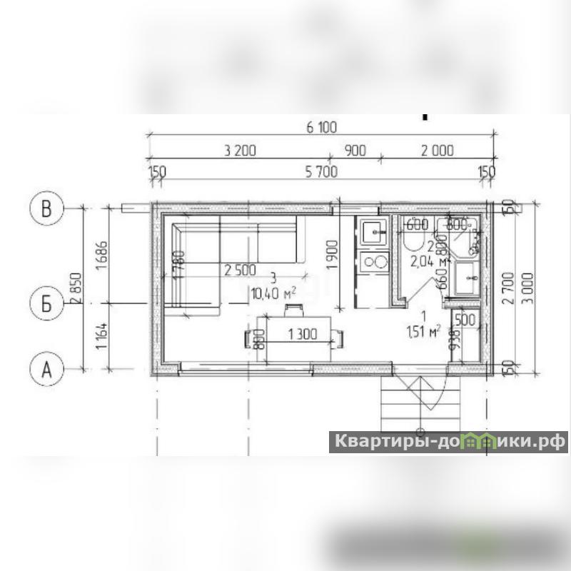
- Площадь: 18 кв. м.
- Планировка: Объединенная кухня, гостиная и спальня, санузел.
- Вместимость: До 3 человек.
- Сезонность: Еврозима, предназначен для круглогодичного проживания.
- Срок возведения: 1 месяц, что позволяет быстро начать жить в новом доме.
### Финансовые условия:
- Цена: 1 085 000 рублей, включая коммуникации.
- Варианты оплаты: Доступен для строительства при использовании материнского капитала, что делает его доступным для многих семей.
### Просмотр выставочного дома:
Для оценки комфорта и планировки дома предлагается бесплатный просмотр выставочного объекта в поселке Family Парк. Это отличная возможность убедиться в том, что дом соответствует вашим требованиям и ожиданиям.
Доп. описание: отопление: электрическое, канализация: выгребная яма (бак), улучшенная черновая отделка, также имеются: ,.. Больше фотографий по ссылке:
Показать телефон
Загрузка карты
Поделиться объявлением
Отправить жалобу
Поднять объявление
Итого: 210 р.
Вы будете перенаправлены на страницу оплаты (Robokassa).
Загрузка
Получить контактные данные
Внимание! Это платная услуга. Стоимость 100 рублей.
Укажите почтовый адрес (туда будет отправлена копия контактов из объявления)
Письмо отправлено!
На указанный при регистрации Email отправлены контактные данные для данного объекта.
Мы вышлем контакты на указанную почту как только оплата будет проведена.
Отправить сообщение продавцу
Сообщение отправлено!
Владелец объявления свяжется с Вами в ближайшее время.
Отправить объявление по почте
Письмо отправлено!
На указанный Email отправлена информация о текущем объекте.