28

Данное объявление было снято с публикации собственником. Если несмотря на это Вы хотите увидеть контактные данные, то можете сделать это посредством платной услуги "Хочу все знать".


10 522 100 р. 215 т.р./ м2
62 759 р.
в месяц по ипотеке
Севастополь, Мате Залки улица, 86

1
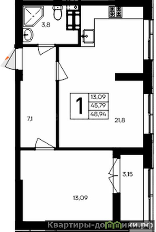
49 м2
21.8 м2

7 из 9
2.7 м
Совмещенный
Монолитный
II 2028
Семисчастье

Возможность приобретения в ипотеку
Тип комнат: Изолированные

07.11.2025 (30 дней назад)
02.12.2025 (5 дней назад)

Прямая продажа
Жилой комплекс "Семисчастье" в Севастополе - идеальное место для вашего комфортного проживания на берегу Черного моря. Расположенный в живописном районе города, он предлагает широкий выбор квартир различной планировки и ценовой категории. Уютные квартиры с видом на море и горы, современная инфраструктура, благоустроенная территория - все это делает "Семисчастье" идеальным выбором для тех, кто ценит комфорт и качество. Звоните, чтобы узнать больше о наших предложениях и стать одним из счастливых обладателей квартиры в жилом комплексе "Семисчастье". В продаже имеются квартиры в жилом комплексе "Семисчастье" премиум-класса. Общая площадь составляет 48,941 кв.м., при этом кухня - 21,80 кв.м. Высота потолков достигает 2,7 м. Полная сумма в договоре, прямая продажа! Семейная ипотека и материнский капитал! Без комиссии, все оплачивает застройщик! ? С агентствами не сотрудничаем, просьба не звонить!

Если Вы хотите чтобы объявление было полностью удалено с нашего сайта, ознакомьтесь с информацией про удаление арихивных объектов (платная услуга).

Загрузка карты