50
10 522 100 р. 215 т.р./ м2
Севастополь, ул. Мате Залки, 86

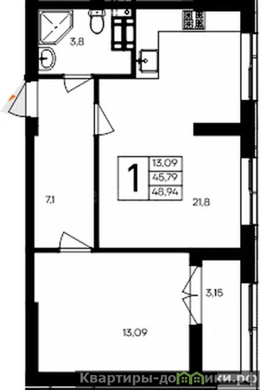
1
49 м2
21.8 м2

4 из 9
Совмещенный
Монолитный
2028

Возможность приобретения в ипотеку

08.11.2025 (146 дней назад)
09.03.2026 (24 дня назад)

Прямая продажа
Жилой комплекс "Семисчастье" в Севастополе - идеальное место для вашего комфортного проживания на берегу Черного моря. Расположенный в живописном районе города, он предлагает широкий выбор квартир различной планировки и ценовой категории. Уютные квартиры с видом на море и горы, современная инфраструктура, благоустроенная территория - все это делает "Семисчастье" идеальным выбором для тех, кто ценит комфорт и качество. Звоните, чтобы узнать больше о наших предложениях и стать одним из счастливых обладателей квартиры в жилом комплексе "Семисчастье". В продаже имеются квартиры в жилом комплексе "Семисчастье" премиум-класса. Общая площадь составляет 48,943 кв.м., при этом кухня - 21,80 кв.м. Высота потолков достигает 2,7 м. Полная сумма в договоре, прямая продажа! Семейная ипотека и материнский капитал! Без комиссии, все оплачивает застройщик! Если покупаете через нашу компанию, осуществляем приёмку квартиры! С агентствами не сотрудничаем, просьба не звонить! Информацию о проектной декларации вы можете получить по контактному телефону указанному в объявлении. AFY-345522413
Показать телефон
Загрузка карты