146
10 522 100 р. 215 т.р./ м2
Севастополь, Мате Залки улица, 86

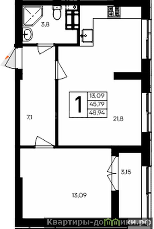
1
49 м2
21.8 м2

1 из 9
2.7 м
Совмещенный
Монолитный
II 2028
Семисчастье

Возможность приобретения в ипотеку
Тип комнат: Изолированные

12.11.2025 (119 дней назад)
10.03.2026 (сегодня)

Прямая продажа
Жилой комплекс "Семисчастье" в Севастополе - идеальное место для вашего комфортного проживания на берегу Черного моря. Расположенный в живописном районе города, он предлагает широкий выбор квартир различной планировки и ценовой категории. Уютные квартиры с видом на море и горы, современная инфраструктура, благоустроенная территория - все это делает "Семисчастье" идеальным выбором для тех, кто ценит комфорт и качество. Звоните, чтобы узнать больше о наших предложениях и стать одним из счастливых обладателей квартиры в жилом комплексе "Семисчастье". В продаже имеются квартиры в жилом комплексе "Семисчастье" премиум-класса. Общая площадь составляет 48,946 кв.м., при этом кухня - 21,80 кв.м. Высота потолков достигает 2,7 м. Полная сумма в договоре, прямая продажа! Семейная ипотека и материнский капитал! Без комиссии, все оплачивает застройщик! Если покупаете через нашу компанию, осуществляем приёмку квартиры! ? С агентствами не сотрудничаем, просьба не звонить!
Показать телефон
Загрузка карты