16
75 000 000 р. 66 т.р./ м2
67 км. Можайское шоссе, Рузский р-н., Тучково, Советская ул, 22

Универсальные помещения
1,145 м2

1 из -
черновая отделка

Тип входа: separate
Выделенная электрическая мощность: 23

02.12.2025 (123 дня назад)
03.04.2026 (сегодня)

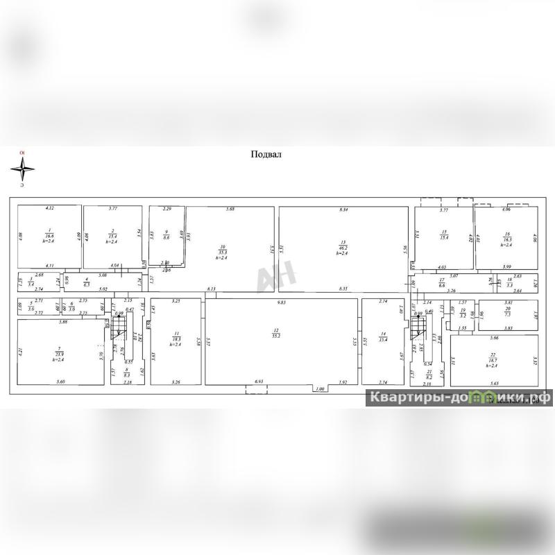
Лот №989582 Продается капитальное коммерческое здание общей площадью 1145 кв.м по адресу: Московская область, р.п. Тучково, ул. Советская, 22. Площадь помещений распределена следующим образом: первый этаж — 352 кв.м, второй этаж — 455 кв.м, подвал — 338 кв.м. Объект расположен на земельном участке площадью 0,15 га, находящемся в собственности. Здание состоит из двух этажей и подвала со свободной планировкой, что позволяет организовать пространство под клиентскую зону, офисы, складские и технические помещения. Высота потолков составляет 3.2 метра. В здании проведено капитальное обновление: выполнены фасадные работы, обновлены инженерные коммуникации, установлены современные энергосберегающие окна. Объект оснащен центральным отоплением, электрической мощностью 23 кВт, имеет несколько входов с улицы. На каждом этаже имеются по 4 вывода мокрых точек (канализация + водоотведение). Состояние под чистовую отделку Shell&core. Перед зданием расположена бесплатная парковка и предусмотрен удобный подъезд для грузового транспорта. Данное предложение представляет отличный вариант для инвестиций или открытия собственного бизнеса, включая такие форматы, как торговля, медицинский центр, офисы, образовательные проекты, общежитие, пункт общественного питания, склад или шоурум. Чтобы получить ПОДРОБНУЮ ПРЕЗЕНТАЦИЮ С ПЛАНИРОВКОЙ И ФОТОГРАФИЯМИ, звоните или отправьте свой email в сообщении на портале. Высылаем в течение 15 минут по запросу! ? Конт. лицо: Алексей Сергеевич, доб. 230, ЛОТ №989582
Показать телефон
Загрузка карты