2
23 000 000 р. 442 т.р./ м2
137 183 р.
в месяц по ипотеке
Даниловский р-н., Мустая Карима ул
Технопарк

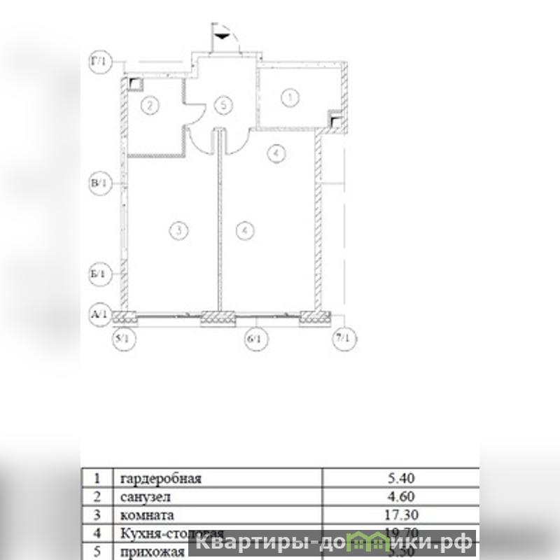
1
52 м2
17.3 м2
19.7 м2

13 из 35
черновая отделка
во двор
Монолитный
IV 2027
Переуступка

Отопление
Интернет
Лифт
Тип комнат: раздельные

11.12.2025 (1 день назад)
12.12.2025 (сегодня)

С паркингом
Арт. 127664876 Жилой остров Nagatino i-Land — это новый проект бизнес-класса от Группы Эталон, расположившийся в престижном Даниловском районе. Уникальность проекта заключается в том, что он возводится на берегу Москвы-реки и с двух сторон окружен водой. Именно эта особенность и дала право называть проект настоящим островом внутри столицы.Комплекс расположен в 10-ти минутах на метро до самой центральной точки города. В пределах 6-20-ти минут пешком есть доступ к разным видам транспорта: станция метро Технопар, МЦК ЗИЛ, автобусы. На территории планируется организовать многочисленное озеленение, что улучшит экологию района, а внутренняя инфраструктура позволит жителям чувствовать себя комфортно в зоне жилого комплекса.Подземный паркинг. Ключи в 4 квартале 2027 года. Беспроцентная рассрочка до 03.2027г., платеж 50 000 руб. в месяц, может перейти покупателю.Звоните, ответим на все вопросы.<br/>
Показать телефон
Загрузка карты