1
6 621 500 р. 85 т.р./ м2
39 494 р.
в месяц по ипотеке
Ярославский р-н., Красный Бор посёлок, Сосновый проезд, 6

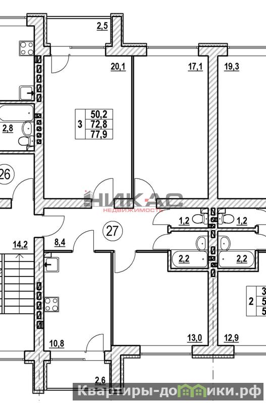
3
78 м2
50.20 м2
10.8 м2

4 из 5
лоджия
Кирпичный
I 2026
Дом в пос. Красный Бор
Переуступка

Коммунальные услуги включены в стоимость
Телефон
Интернет

17.12.2025 (1 день назад)

Предлагаем к покупке 3-ю квартиру в строящемся жилом доме в заволжском районе города Ярославля. САМОЕ ВЫГОДНОЕ ПРЕДЛОЖЕНИЕ в данном районе!!! Квартира подходит под льготную ипотеку от 6% Сдача 1 квартал 2026 г Дом кирпичный, отделка предчистовая. Центральные коммуникации. Дом находится рядом с Сосновым бором. Развитая инфраструктура района в шаговой доступности. УСЛОВИЯ ПОКУПКИ: *Подходит под льготную ипотеку. *БЕЗ комиссии для покупателя! *Юридическое сопровождение сделки. *Покупка через эскроу счет. Не упустите свой шанс стать обладателем уютной квартиры в живописном районе!
Показать телефон
Загрузка карты