119
12 900 000 р. 143 т.р./ м2 2 580 т.р./сот.
Сергиево-Посадский р-н., Воронцово деревня

90 м2
5 сот.
ИЖС

1
Блочный

Электричество
Водопровод
Отопление
Канализация
Возможность постоянного проживания

18.12.2025 (106 дней назад)
21.03.2026 (12 дней назад)

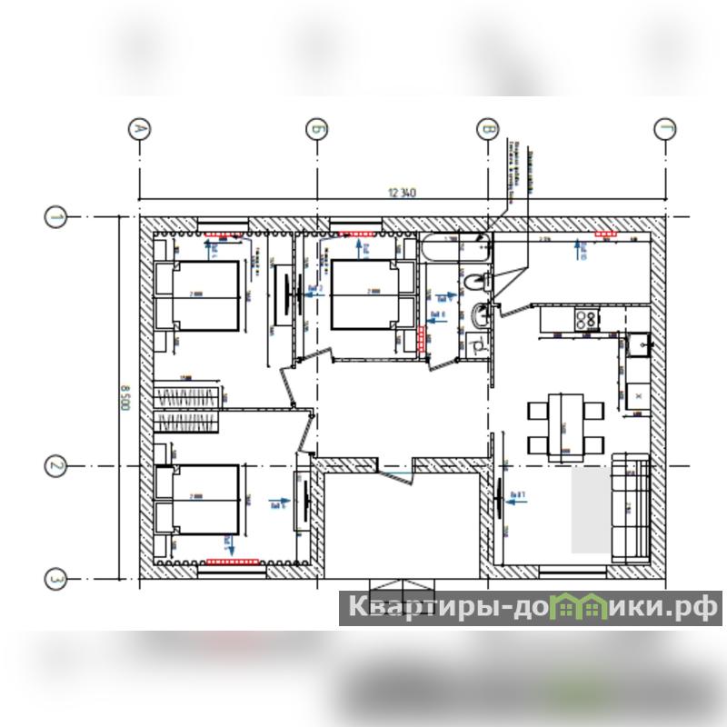
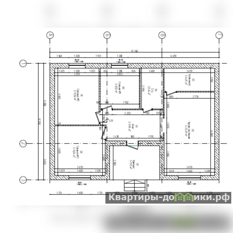
Стильный дом с прекрасным ремонтом для круглогодичного проживания в живописном месте от ЗАСТРОЙЩИКА. ИЖС. Дом можно купить в ипотеку по программам с гос. поддержкой (семейная ипотека, IT-ипотека и пр.) Успейте забронировать дом сейчас. В доме будет выполнен ремонт под ключ, ведутся отделочные работы. Одноэтажный дом 90 кв.м на монолитной плите с утеплением 2025 года постройки. Стены сложены из газобетонных блоков, снаружи оштукатурены и покрашены. Внутренние перегородки выполнены также из газобетонных блоков. Подкрышный армопояс. Потолок утеплен. Крыша вентилируемая, покрыта металлочерепицей, установлены элементы снегозадержания и водосточная система. При входе в дом - уютная веранда. В доме имеется холл 10 кв.м, три изолированные комнаты 13,2 кв.м, 13,5 кв.м, 8,5 кв.м и просторная кухня-гостиная 22 кв.м, бойлерная 6 кв.м. с выходом на улицу, совмещенный санузел 5,5 кв.м. Внутренняя отделка стен - обои с рисунком / обои под покраску, напольное покрытие - ламинат 33 класса, потолки натяжные матовые. Санузен полностью выложен керамогранитной плиткой, установлена сантехника. Смонтированы теплые полы. Коммуникации: электричество 3 фазы 15 кВт, водоснабжение от скважины глубиной 45 м, установлен бойлер для нагрева воды, станция биоочистки, отопление от электрокотла, установлены радиаторы. Все коммуникации разведены по дому. Установлены осветительные приборы. Участок 5,4 сотки, расположен в уединенном месте, по периметру огорожен забором из профлиста на металлическом каркасе с калиткой и распашными воротами, имеет выход к небольшому пруду. Имеется закрытая прилегающая территория, асфальт до участка. Транспортная доступность: круглогодичный подъезд на личном транспорте, автобусное сообщение с Сергиевым Посадом, 2 мин пешком до автобусной остановки. Доступна вся инфраструктура Сергиева Посада, расположенного всего в 5-ти минутах езды автотранспортом: исторические и памятные места, музеи и монастыри, библиотеки и концертные залы, рестораны и кинотеатры, медицинские и торговые центры, а также школы, детские сады, поликлиники и спортивные комплексы. В самом населенном пункте имеется продуктоый магазин и строительная база, конно-спортивный клуб с мини-отелем и рестораном. Чистый воздух и живописная природа. Имеются водоемы для купания и рыбалки. Дом и участок оформлены в собственность. Получены все необходимые разрешения на строительство, заключены договоры с ресурсоснабжающими организациями. Готовность дома с ремонтом под ключ - сентябрь 2026 года. Возможно использование материнского капитала и жилищных сертификатов. При покупке дома с участком с привлечением кредитных средств по ипотечным программам с гос. поддержкой цена обсуждается индивидуально. #Семеная ипотека #Ипотека с господдержкой #Сертификаты #Застройщик #ИП #Юр.лицо
Показать телефон
Загрузка карты