2
8 099 450 р. 116 т.р./ м2
48 309 р.
в месяц по ипотеке
Ярославль, Малая Норская улица

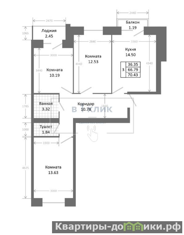
3
70 м2
36.35 м2
14.5 м2

4 из 5
Раздельный
лоджия
Кирпичный
IV 2026
ЖД Малевич
Переуступка

Коммунальные услуги включены в стоимость
Возможность приобретения в ипотеку
Телефон
Интернет

24.12.2025 (1 день назад)
24.12.2025 (сегодня)

Квартиры в жилом доме на ул. Малая Норская сдаются с индивидуальным отоплением от газовой котельной, которая находится на крыше дома. Дом 5 Этажей 2 подъезда Срок сдачи IV квартал 2026 Материал стен Кирпич Квартиры с полной чистовой отделкой и с подготовкой под отделку, включающей стяжку полов, подготовку стен, двухкамерные стеклопакеты с клапанами микропроветривания, входные металлические двери. Высота потолков 2,7 м. Укладка пола плиткой в санузлах. Уже установка сантехники в санузлах: ванная, раковина, туалет, полотенцесушитель. Установка счетчиков на холодное водоснабжение, электроэнергию, газоснабжение. На кухне установка газовой плиты, мойки. Поквартирная электрика с разводкой, монтаж выключателей, розеток.Звоните прямо сейчас, чтобы договориться о просмотре и выбрать свою идеальную квартиру! Преимущества: - Никаких скрытых рисков. - Сопровождение на всех этапах. - Помощь с одобрением ипотеки, сотрудничая с нами у вас больше шансов на ее получение с более выгодными условиями. - Экономия вашего времени и нервов в эксклюзивном подборе. - Сопровождение от нашего агентства клиенту ВСЕГДА Бесплатно. В НАШЕМ ПРОФИЛЕ ТОЛЬКО АКТУАЛЬНЫЕ ОБЪЕКТЫ ДОБАВЬТЕ ПРЕДЛОЖЕНИЕ В ИЗБРАННОЕ, ЧТОБЫ СЛЕДИТЬ ЗА АКТУАЛЬНОЙ ЦЕНОЙ И ПОЛУЧАТЬ УНИКАЛЬНЫЕ ПРЕДЛОЖЕНИЯ! А лучше не стесняйтесь, звоните, все обсудим и быстрее забронируем понравившийся объект, цену нужно успеть зафиксировать, не откладывайте.
Показать телефон
Загрузка карты