1
8 671 000 р. 138 т.р./ м2
51 718 р.
в месяц по ипотеке
Ярославль, Дядьковская улица

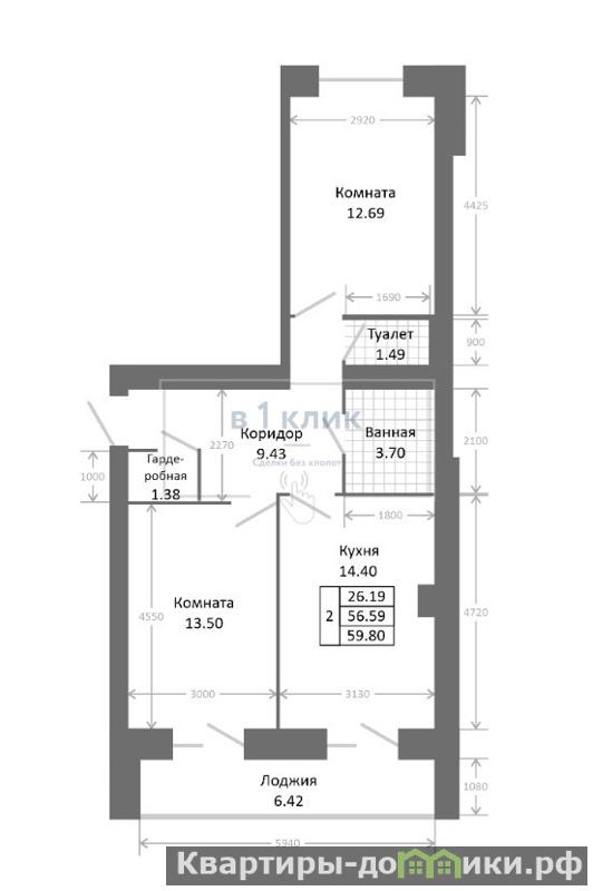
2
63 м2
26.19 м2
14.4 м2

6 из 9
Раздельный
лоджия
Кирпичный
III 2027
ЖД На Дядьковской
Переуступка

Коммунальные услуги включены в стоимость
Телефон
Интернет
Тип комнат: изолированная

24.12.2025 (1 день назад)
24.12.2025 (сегодня)

Стартовала продажа квартир от надежного застройщика. Строят качественно! Дом- кирпичный. ИНДИВИДУАЛЬНОЕ ГАЗОВОЕ ОТОПЛЕНИЕ., о преимуществах и экономии рассказывать уже не приходится. Не угловая! Рядом остановка общественного транспорта. В непосредственной близости находится 4 детских сада, школа, поликлиники, фитнес клубы, аквапарк. Крупный гипермаркет Лента, а также благоустроенный парк СудостроителейСрок сдачи III квартал 2026 МОЛОДОЖЕНАМ приятная СКИДКА! Планировки квартир максимально комфортные, чтобы можно было задействовать каждый квадратный метр. Все жилые помещения сдаются с отделкой, в которую входит проведение следующих ремонтных работ: • штукатурка стен машинного нанесения; • стяжка на полах, плитка на полу в санузлах; • установка сантехники в санузле; • монтаж отопительной системы и установка радиаторов; • подводка систем коммуникации; • индивидуальное газовое отопление, установка мойки и газовой плиты на кухне; • установка двухкамерных окон ПВХ и остекление лоджий; • монтаж входных дверей. Звоните прямо сейчас, чтобы договориться о просмотре и выбрать свою идеальную квартиру! преимущества: - Никаких скрытых рисков. - Сопровождение на всех этапах. - Помощь с одобрением ипотеки, сотрудничая с нами у вас больше шансов на ее получение с более выгодными условиями. - Экономия вашего времени и нервов в эксклюзивном подборе. - Сопровождение от нашего агентства клиенту ВСЕГДА Бесплатно. В НАШЕМ ПРОФИЛЕ ТОЛЬКО АКТУАЛЬНЫЕ ОБЪЕКТЫ ДОБАВЬТЕ ПРЕДЛОЖЕНИЕ В ИЗБРАННОЕ, ЧТОБЫ СЛЕДИТЬ ЗА АКТУАЛЬНОЙ ЦЕНОЙ И ПОЛУЧАТЬ УНИКАЛЬНЫЕ ПРЕДЛОЖЕНИЯ! А лучше не стесняйтесь, звоните, все обсудим и быстрее забронируем понравившийся объект, цену нужно успеть зафиксировать, не откладывайте.
Показать телефон
Загрузка карты