9
23 940 000 р. 210 т.р./ сот.
142 789 р.
в месяц по ипотеке
Новоусманский р-н., Новая Усмань село

114 сот. 1.14 Га
ИЖС
Прямая продажа

15.11.2025 (20 дней назад)
15.11.2025 (19 дней назад)

Прямая продажа
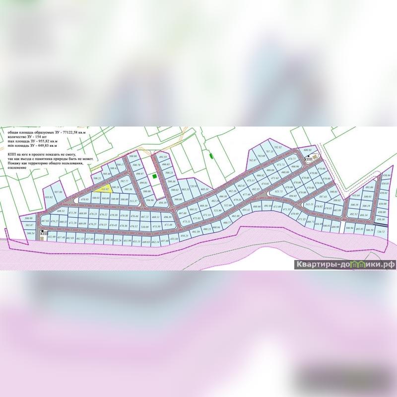
Уважаемые покупатели, инвесторы, застройщики, к вашему вниманию на продажу большой участок (квартал) в коттеджном поселке "Речной Парк". Уже сделано размежевание на мелкие участки площадью по 5 соток, все ИЖС. Участок 114 соток, район улицы Октябрьской (стадион) рядом в паре минут пешком от въезда на золотой остров Земельный участок - 113 соток. К участкам уже сделаны дороги, подъездные пути из качественного материала шириной 5 метров. По границе участка есть свет (новые столбы). Подвод газа запланировано завершить полностью до конца 2025 года. Рядом в шаговой доступности находится сосновое урочище. Рядом река, чистый воздух и тишина, буквально в 15 минутах езды от города. План планировки территории согласован с администрацией. Покупка квартала будет потенциальна интересна застройщикам. Готовы обсуждать условия продажи. Развитая инфраструктура, на машине 3-4 минуты до самого центра Новой Усмани (администрация, почта, магазины) Рядом река Усманка, и ее притока. Все документы оформлены, в собственности более 5 лет, быстрый выход на сделку. Возможность оплаты в безналичном расчете. Юридическое сопровождение сделки.
Показать телефон
Загрузка карты