2
77 700 000 р. 2 220 т.р./ сот.
463 439 р.
в месяц по ипотеке
Одинцово, ул Стольная, 2
50:20:0020321:3817

35 сот.
ИЖС
Прямая продажа

11.12.2025 (3 дня назад)
12.12.2025 (1 день назад)

Прямая продажа
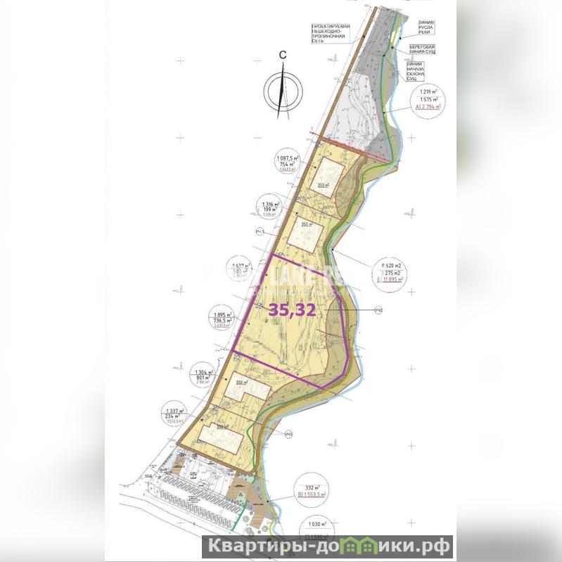
Арт. 90234144. Эксклюзивный договор АН Penny Lane Realty. Элитный КП Стольное, въезд через КПП N 2, Переделкино. Участок: 35,32 сот. Уникальное расположение – участок имеет собственную береговую линию. Все центральные коммуникации КП Стольное входят в стоимость. Внимание! ЗУ в стадии изменения ВРИ, документы поданы, поэтому стоимость ниже, чем в КП Стольное. Стоимость участков В КП Стольное в среднем от 4 млн. руб. за сотку. ? Цена от 2,2 млн.руб за сотку. ? Цена 35,32 сот: от 77,4 млн.руб. Участник AREA - Ассоциации Агентств Элитной Недвижимости
Показать телефон
Загрузка карты